Haunted Mansion: Queue Expansion

As Lead Graphic Designer, I directed the environmental graphic design and signage execution for the Haunted Mansion queue expansion. This multi million dollar themed environment required a high level of creative storytelling, technical precision, and cross functional collaboration to ensure seamless integration with the attraction’s legacy and immersive guest experience.

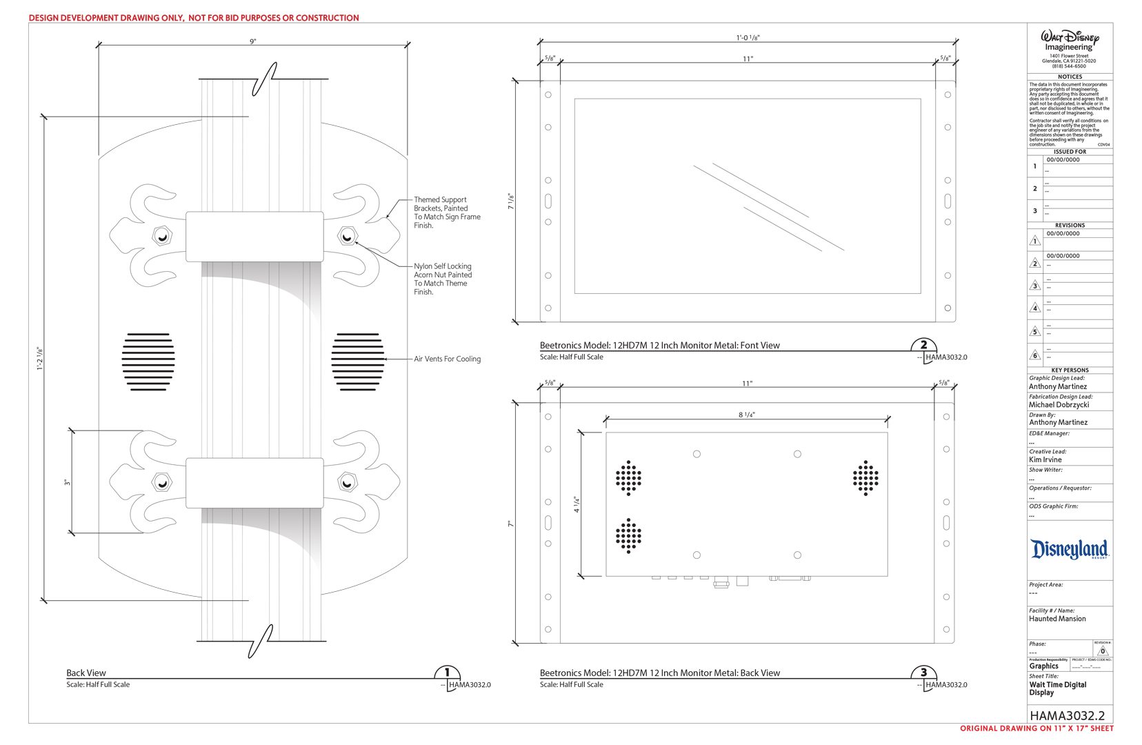
Responsibilities included defining project scope, developing design concepts, and producing detailed graphic packages that aligned with creative intent, architectural constraints, and operational requirements. I partnered closely with creative, architecture, fabrication, and construction teams to guide the work from early concept proposals through final execution.

I reviewed and approved vendor submittals, shop drawings, materials, and finishes, and provided on site oversight during installation to ensure accuracy, quality, and adherence to approved designs and timelines. Throughout the project, I maintained consistency with Disney brand standards while enhancing wayfinding, storytelling, and visual cohesion across the expanded queue.

Next
Next

Madame Leota's Somewhere Beyond